Rozmawiaj o czym chcesz o polityce, rozrywce, forum o sobie itd.
-
Katarzyna
Post
autor: Katarzyna » 17 Lut 2015, o 12:28
Asia i Przemo - mam pytanie do Was. Zrezygnowaliście z okien dachowych i zamiast okien balkonowych macie zwykłe. Nie za ciemno będzie w pokojach?
Ja dopiero mam fundamenty ale już niedługo

Pozdrawiam
-
asia i przemo
- Posty: 23
- Rejestracja: 20 Mar 2014, o 15:13
Post
autor: asia i przemo » 17 Lut 2015, o 13:08
zrezygnowaliśmy z okien dachowych bo osobiście ich nie lubie mamy tylko jedno które musi być w łazience ... według mnie nie jest ciemno..choć są osoby które wolą bardzo jasno w pokojach dla nas jest ok
-
Mirek
- Posty: 100
- Rejestracja: 11 Paź 2013, o 19:31
-
Kontaktowanie:
Post
autor: Mirek » 17 Lut 2015, o 21:42
Asia u nas blaty w kuchni będą na wysokości 90cm i zaraz wyżej jest okno (zachcianka żony), nie pamiętam jak było w projekcie ale okno frontowe od kuchni jest na pewno większe niż w projekcie - jest takie samo na wysokość jak to boczne przy jadalni.
-
KasiaR
Post
autor: KasiaR » 1 Mar 2015, o 11:35
Witam, mam pytanie czy możecie pokazać fotki jak w Waszych Jeżynach wyglądają pokoje na górze, czy dużo pozmienialiście w stosunku do projektu gotowego. Z góry dziękuję, śledzę na bieżąco forum i proszę o więcej zdjęć

-
dzejo85
- Posty: 17
- Rejestracja: 9 Wrz 2014, o 14:10
Post
autor: dzejo85 » 1 Mar 2015, o 16:51
Jak będę na budowie to zrobię kilka fotek jak to wygląda w środku.
Poniżej szkic – zrobiliśmy to co musiało być (ściany po środku w kolorze czarnym) + na czerwono komin reszta murowana była po zrobieniu dachu (po dachu wszystko sobie pomierzyliśmy przemyśleliśmy i tak to zrobiliśmy)
http://prntscr.com/6bd23x
-
KasiaR
Post
autor: KasiaR » 1 Mar 2015, o 17:27
Dziękuję za odpowiedź, my cały czas się wahamy czy nasza sypialnia ma być na dole a pokoje dzieci (2)na górze i bardzo chcemy oddzielić choćby małą pralnię na górze żeby tych wiszących ubrań nie było w łazienkach jak mam w tej chwili i mały pokój z przeznaczeniem na składzik (ubrania, pościel, bombki,walizki, deska do prasowania itp) bo przecież gdzieś to trzeba trzymać. Nie wiem tylko czy w tym pokoju na dole zmieści się duże łóżko, pojemna szafa (żeby nie wchodzić po nasze ubrania na górę). Czy można na dole trochę przesunąć drzwi w stronę schodów żeby zmieściła się przy ścianie szafa bo w oryginale jest to niemożliwe? A może ten pokój przeznaczyć właśnie na garderobę? Noi jak ta łazienka na dole czy nie jest za mała?? Z góry dziękuję za informacje jak to u Was wygląda. Pozdrawiam

-
asia i przemo
- Posty: 23
- Rejestracja: 20 Mar 2014, o 15:13
Post
autor: asia i przemo » 2 Mar 2015, o 09:47
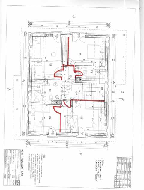
my zmieniliśmy trochę góre nie umiem robić tak ładnych szkiców jak inni wiec prześle ci zdjęcie jak zmieniliśmy na rysunkach szczegółowych..czerwonym markerem zaznaczyłam jak teraz są u nas ściany.....
mamy takie zmiany
1. do góry po lewej stronie bedziemy mieś sypialnie z wielką garderobą zrobioną z tego mniejszego pokoju( tam deski do prasowania, walizki itp..
2. a po drugiej stronie tam gdzie była sypialnia i jeden pokój... podzieliliśmy to na dwa równe pokoje ze ścianka na środku co pozwoli nam jeszcze zrobić na korytarzu szafe taką wnękową. np na ręczniki pościele
-
Załączniki
-
- QScan03022015_093651.jpg
- (30.09 KiB) Pobrany 624 razy
-
KasiaR
Post
autor: KasiaR » 3 Mar 2015, o 12:50
Asia my też tak myśleliśmy jak jest u Was na górze tzn. żeby te dwa pokoje były identyczne. Ponieważ podobnie jak Wy nie przepadamy za oknami połaciowymi to nawet nie chcemy go mieć w łazience tylko ją przenieść w miejsce pokoju i żeby było okno normalne. Pewnie jeszcze wszystko nam się pozmienia jak zaczniemy budować ale lepiej z początku już myśleć jak to będzie. Dodajcie trochę nowych zdjęć

-
Magda
Post
autor: Magda » 6 Mar 2015, o 16:50
Witam!
My z Mężem przymierzamy się do rozpoczęcia budowy domu Jeżyna.
Projekt zakupiliśmy + dodatkowo garaż, aktualnie jesteśmy w trakcie załatwiania pozwolenia na budowę.
Kupiliśmy również kosztorys domu Jeżyna. Czy ktoś z Budujących może powiedzieć czy jest w nim jakieś pokrycie z realnymi wydatkami?
Lub może ktoś mógłby się podzielić swoimi wydatkami?

Kto jest online
Użytkownicy przeglądający to forum: Obecnie na forum nie ma żadnego zarejestrowanego użytkownika i 7 gości